4 BED Detached house To rent

Rectory Road, Arley, Coventry

£2,750 pcm

4 2

Enquire about this property
02476 374 949

Property details

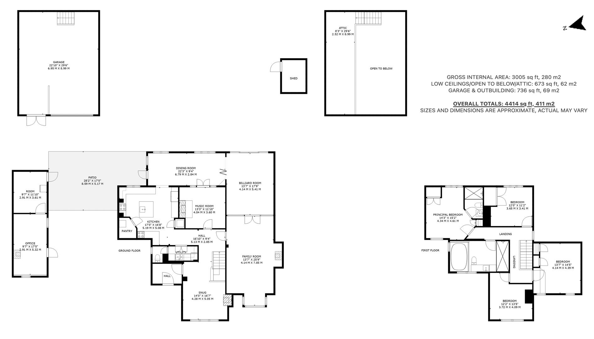
This immaculate four bedroom detached home is set in the rural community of Arley and really needs to be seen to be believed. Although finished to a very high standard, the property still manages to maintain a rustic and homely feel throughout its many rooms and plentiful external space.

Once across it's gated multi-car driveway and through the entranceway the downstairs benefits from; Snug, Spacious family room, Dining room, Fitted Kitchen, Utility room with WC and a music room/home office space. as well as a Billiards room which is a rare find. Upstairs you will find; Large principle bedroom with en-suite, a further three double bedrooms and family bathroom.

At the rear a mature garden with both ample lawn and patio areas also features parking for up to an additional three cars, multiple outbuildings including; an office space and multi-car garage and shed.

In order to view this stunning family home in the heart of the ever popular Arley call Sheldon Bosley Knight on 02476 374949.

Entrance Hall



Hallway (5.13 x 2.85)



Snug (4.28 x 5.05)



Family Room (4.14 x 7.85)



Billiard Room (4.14 x 5.41)



Dining Room (6.79 x 2.84)



Music Room (4.04 x 3.60)



Kitchen (5.19 x 5.08)



Utility Room



Stairs to



Landing



Principle Bedroom (4.34 x 4.61)



Bedroom two (4.14 x 4.39)



Bedroom three (3.72 x 4.09)



Bedroom four (3.65 x 3.41)



Family Bathroom



Deposit Alternative Option



Instead of a traditional deposit, you will be required to pay a one-time check-in fee to Flatfair Ltd, equivalent to 28% of the rent plus VAT. This alternative significantly reduces your upfront moving costs.



General information



To find broadband availability at the property - https://checker.ofcom.org/en-gb/broadband- coverage

To check flood risk information - https://www.gov.uk/check-long-term-flood-risk

To find local council information - https://www.nuneatonandbedworth.gov.uk/

SERVICES: all mains services are connected but not tested. The telephone is available subject to the appropriate telephone companies regulations. Sheldon Bosley Knight have not tested any apparatus, equipment, fittings, etc, or services to this property, so cannot confirm they are in working order or fit for the purpose. A buyer is recommended to obtain confirmation from their Surveyor or Solicitor.


MEASUREMENTS: the measurements provided are given as a general guide only and are all approximate.



Important Information About Tenancy Costs



A holding deposit equivalent to ONE WEEKS RENT is required to secure your interest in the property, until all checks have been completed.

Upon successful referencing contracts will proceed and move in details arranged, the holding deposit will be transferred to your account with Sheldon Bosley Knight and held towards the initial first month’s rent unless otherwise agreed.

In case of the following conditions, the holding deposit will be retained, in full to cover company costs incurred:

• False, inaccurate, missing, or misleading information is supplied by you
• Failure by the applicants, or their referees, guarantors (or other third parties supplied by you and relating to your application) to complete the process and sign any Tenancy agreement within 14 days from the date of application (You must ensure that you advise all contacts beforehand that they will be contacted). Should we need to extend this deadline, we will email you to confirm and, in any event, when we inform you that references are complete, the deadline for contract signing will extend by one week (i.e. total 21 days from payment of the holding deposit).
• No legal authority to rent (Failing Right to Rent Checks)
• You and/or any of your co-applicants decide to withdraw from the process after this application is submitted to us.



Online Viewings



Please be advised that due to high demand, all applicants are required to attend an in-person viewing of the property before submitting an application. Online viewings are for visual reference only and do not serve as a substitute for an in-person viewing.




Property location

Property Floorplan

Floorplan

Property EPC