3 BED Detached house To rent

Ranelagh Terrace, Leamington Spa

£1,300 pcm

3 1

Enquire about this property
01926 430555

Property details

*** AVAILABLE NOW- FAMILY FRIENDLY HOME WITH PETS CONSIDERED *** This charming three-bedroom detached house is located in a sought-after area south of Leamington Spa, within walking distance of the town centre and train station. It offers excellent commuter links, a variety of local amenities, major supermarkets, and well-regarded schools nearby.

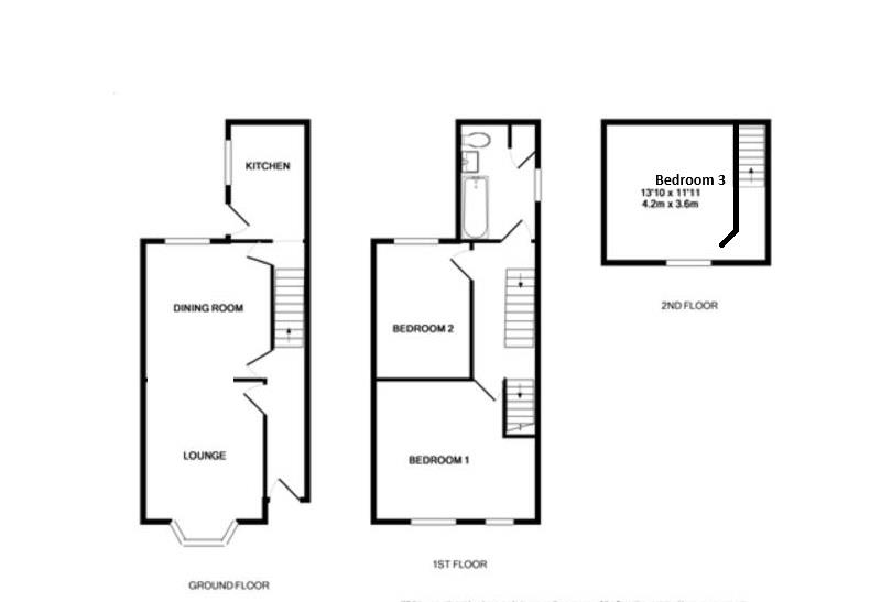
The property features: A welcoming entrance hall, spacious, open-plan living and dining area with a character bay window at the front, dual aspect, and high-quality wood-effect flooring throughout, a modern kitchen with ample storage, including under-stair space, direct access to a low-maintenance courtyard garden, and appliances (fridge/freezer and washer/dryer) included.

First floor: Two generously sized double bedrooms and a large bathroom with a full suite, including a shower over the bath. Second Floor: A third double bedroom.

The property includes a low-maintenance courtyard garden and on-street parking and is offered PART-FURNISHED/UNFURNISHED Landlord is flexible. Council Tax Band: B. Energy Rating: D. Please note, a maximum of two sharers are permitted.

Important Information About Tenancy Costs



A holding deposit equivalent to ONE WEEKS RENT is required to secure your interest in the property, until all checks have been completed.

Upon successful referencing contracts will proceed and move in details arranged, the holding deposit will be transferred to your account with Sheldon Bosley Knight and held towards the initial first month’s rent unless otherwise agreed.

In case of the following conditions, the holding deposit will be retained, in full to cover company costs incurred:

• False, inaccurate, missing, or misleading information is supplied by you
• Failure by the applicants, or their referees, guarantors (or other third parties supplied by you and relating to your application) to complete the process and sign any Tenancy agreement within 14 days from the date of application (You must ensure that you advise all contacts beforehand that they will be contacted). Should we need to extend this deadline, we will email you to confirm and, in any event, when we inform you that references are complete, the deadline for contract signing will extend by one week (i.e. total 21 days from payment of the holding deposit).
• No legal authority to rent (Failing Right to Rent Checks)
• You and/or any of your co-applicants decide to withdraw from the process after this application is submitted to us.



Online Viewings



Please be advised that due to high demand, all applicants are required to attend an in-person viewing of the property before submitting an application. Online viewings are for visual reference only and do not serve as a substitute for an in-person viewing.



Living through Dining Room



Kitchen



Bathroom



Bedroom One



Bedroom Two



Bedroom Three




Property location

Property Floorplan

Floorplan

Property EPC

Property Video