3 BED Detached house To rent

Harvest Road, Market Harborough

£1,450 pcm

3 2

Enquire about this property
01858 439080

Property details

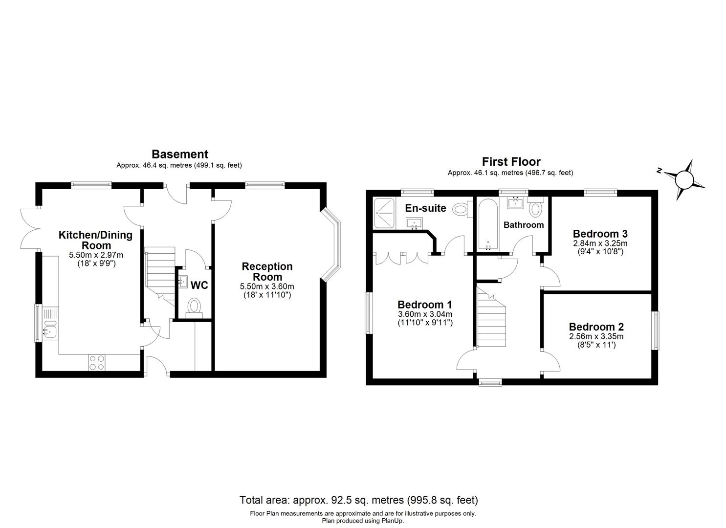
***DEPOSIT ALTERNATIVE AVAILABLE*** A wonderful opportunity to rent an extremely well finished three bedroom detached house situated within the popular Lubenham View Development. The accommodation comprises entrance hallway with guest cloakroom, sitting room with bay window, spacious modern dining/kitchen with built-in appliances and French doors to the garden, and door leading to utility room and door leading to car port. Stairs to first floor landing with master double bedroom having en-suite shower room, two further double bedrooms and family bathroom. To the rear of the property the garden. Outside to the side of the property there is a single garage and car port,. Unfurnished. Council Tax Band D. EPC B. Rent £1,450pcm. Deposit £1,673. Available end February on a fixed term twelve month contract with the option to renew.

Important Information About Tenancy Costs



A holding deposit equivalent to ONE WEEKS RENT is required to secure your interest in the property, until all checks have been completed.

Upon successful referencing contracts will proceed and move in details arranged, the holding deposit will be transferred to your account with Sheldon Bosley Knight and held towards the initial first month’s rent unless otherwise agreed.

In case of the following conditions, the holding deposit will be retained, in full to cover company costs incurred:

• False, inaccurate, missing, or misleading information is supplied by you
• Failure by the applicants, or their referees, guarantors (or other third parties supplied by you and relating to your application) to complete the process and sign any Tenancy agreement within 14 days from the date of application (You must ensure that you advise all contacts beforehand that they will be contacted). Should we need to extend this deadline, we will email you to confirm and, in any event, when we inform you that references are complete, the deadline for contract signing will extend by one week (i.e. total 21 days from payment of the holding deposit).
• No legal authority to rent (Failing Right to Rent Checks)
• You and/or any of your co-applicants decide to withdraw from the process after this application is submitted to us.



Online Viewings



Please be advised that due to high demand, all applicants are required to attend an in-person viewing of the property before submitting an application. Online viewings are for visual reference only and do not serve as a substitute for an in-person viewing.



Deposit Alternative Option



Instead of a traditional deposit, you will be required to pay a one-time check-in fee to Flatfair Ltd, equivalent to 28% of the rent plus VAT. This alternative significantly reduces your upfront moving costs.




Property location

Property Floorplan

Floorplan

Property EPC

Property Video