5 BED House For sale

School Lane, Wilbarston, LE16

£500,000

5 2

Enquire about this property
01858 431315

Property details

PRICE RANGE £485,000 to £500,000

This impressive five-bedroom detached family home is situated in the sought-after village of Wilbarston. The property offers a wealth of period character and modern comfort, making it ideal for those seeking both style and practicality.
Upon entering, you are greeted by a spacious open plan hallway with a useful storage cupboard. The farmhouse-style kitchen is a standout feature, boasting shaker style cabinets, solid wood worktops, and space for freestanding appliances. The dining room, complete with oak flooring and a charming log burner, opens onto the garden through French windows, creating a wonderful space for entertaining. A versatile study, which could also serve as a home office or playroom, provides flexibility for family life.
Upstairs, the landing features a striking window that frames countryside views. The recently renovated family bathroom is finished to a luxurious standard and includes a four-piece suite with a walk-in rainfall shower, a feature freestanding bath, and a bidet. There is also a convenient downstairs cloakroom, perfect for guests.

The walled garden is a true highlight of this property, offering a private and secure space for all the family to enjoy. A generous patio area is perfect for al fresco dining or relaxing with friends, while the lawn provides ample space for children to play. Mature planting creates a sense of seclusion and adds year-round interest to the garden. The garden is thoughtfully designed to make the most of sunny days and is easily accessed from the dining room, making it ideal for seamless indoor-outdoor living.
The setting is further enhanced by the village location, with countryside walks and local amenities close by. This is a rare opportunity to acquire a beautifully presented family home with exceptional outside space in a highly desirable village setting.

PRICE RANGE £485,000 to £500,000

This impressive five-bedroom detached family home is situated in the sought-after village of Wilbarston. The property offers a wealth of period character and modern comfort, making it ideal for those seeking both style and practicality.
Upon entering, you are greeted by a spacious open plan hallway with a useful storage cupboard. The farmhouse-style kitchen is a standout feature, boasting shaker style cabinets, solid wood worktops, and space for freestanding appliances. The dining room, complete with oak flooring and a charming log burner, opens onto the garden through French windows, creating a wonderful space for entertaining. A versatile study, which could also serve as a home office or playroom, provides flexibility for family life.
Upstairs, the landing features a striking window that frames countryside views. The recently renovated family bathroom is finished to a luxurious standard and includes a four-piece suite with a walk-in rainfall shower, a feature freestanding bath, and a bidet. There is also a convenient downstairs cloakroom, perfect for guests.

The walled garden is a true highlight of this property, offering a private and secure space for all the family to enjoy. A generous patio area is perfect for al fresco dining or relaxing with friends, while the lawn provides ample space for children to play. Mature planting creates a sense of seclusion and adds year-round interest to the garden. The garden is thoughtfully designed to make the most of sunny days and is easily accessed from the dining room, making it ideal for seamless indoor-outdoor living.
The setting is further enhanced by the village location, with countryside walks and local amenities close by. This is a rare opportunity to acquire a beautifully presented family home with exceptional outside space in a highly desirable village setting.


Calculate Your Stamp Duty
£
Results
Stamp Duty To Pay:
Effective Rate:
Tax Band % Taxable Sum Tax

Property location

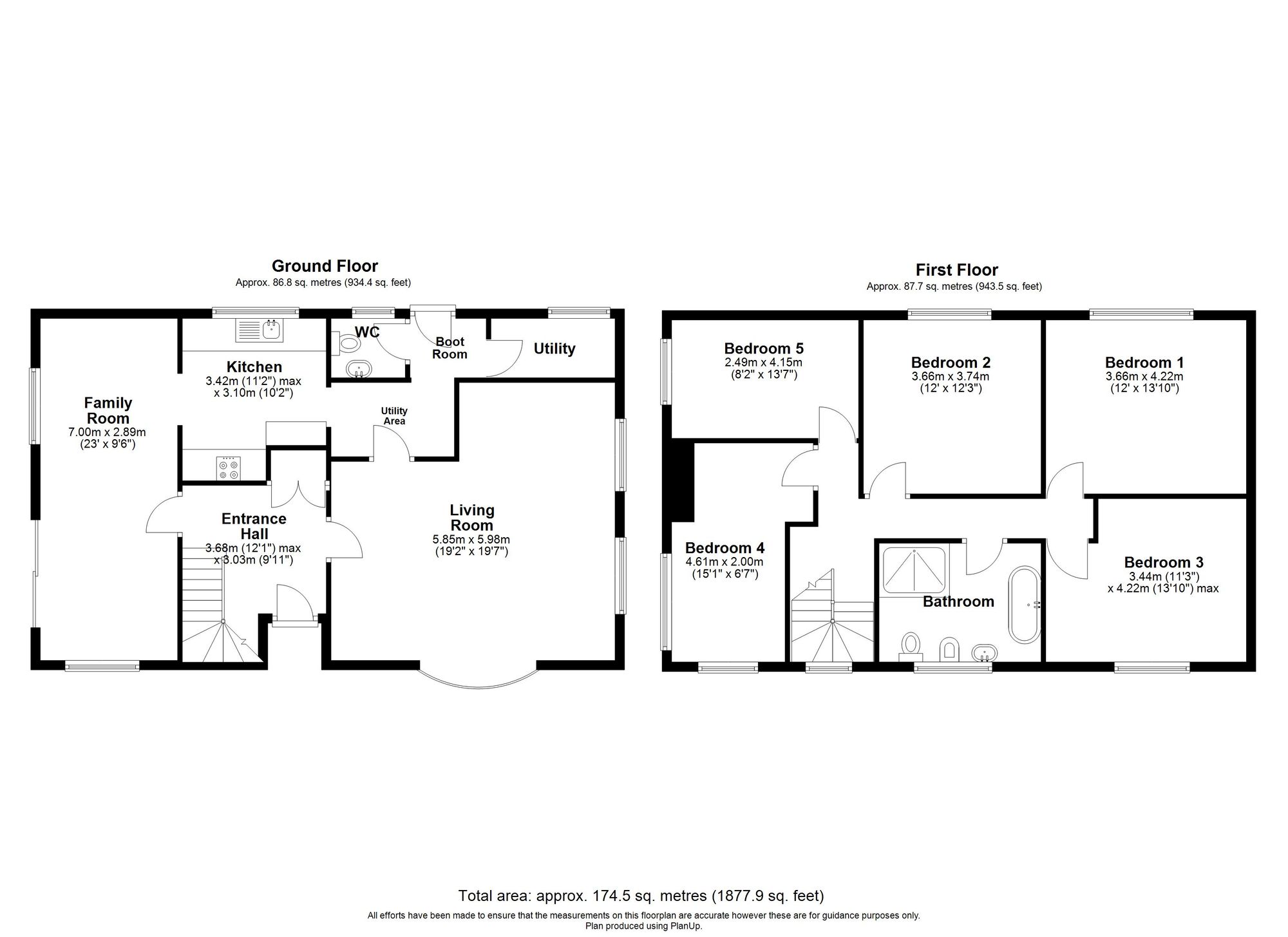
Property Floorplan

Floorplan

Property EPC