2 BED Terraced House For sale

Sovereign Road, Coventry

£180,000

2 1

Enquire about this property
02476 635555

Property details

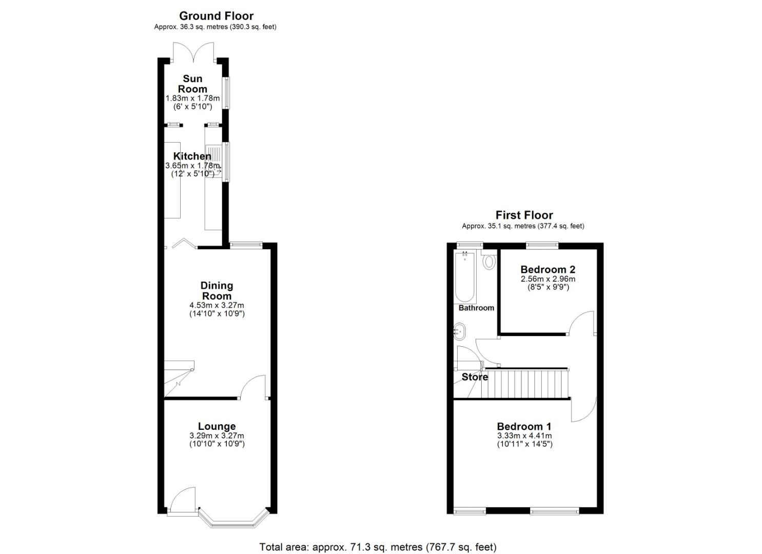
Larger than average delightful two-bedroom property, with an upstairs bathroom and potential to create a third bedroom

Sheldon Bosley Knight are pleased to present this chain-free and delightful two-bedroom mid-terrace property, ideally located in the ever-popular and sought-after suburb of Earlsdon. Offering a perfect blend of period charm and modern upgrades, this home is an excellent opportunity for first-time buyers, investors, or those looking to enjoy the vibrant community feel of one of Coventry’s most desirable areas.

What truly sets this property apart is its rare upstairs bathroom – a feature not often found in homes of this style, whilst also having freehold of the side passage, meaning larger bedroom space above, giving potential to renovate into a 3 bedroom property each with access from the landing. Traditionally, similar properties have the bathroom located on the ground floor, but here you’ll enjoy the convenience of a modern, well-appointed bathroom situated off the main landing.

The accommodation includes two well-proportioned double bedrooms upstairs. Downstairs you're offered a bright and airy front living room, a separate dining area or secondary living space with brand new smart vinyl flooring, and a fitted kitchen with a gorgeous sun room/office to the rear, leading to the private rear garden – ideal for relaxing or entertaining.

Situated just moments from Earlsdon’s bustling high street, you’ll have cafés, restaurants, shops, and excellent local schools on your doorstep, along with superb transport links or walking proximity to Coventry city centre, the University, and train station.

Larger than average delightful two-bedroom property, with an upstairs bathroom and potential to create a third bedroom

Sheldon Bosley Knight are pleased to present this chain-free and delightful two-bedroom mid-terrace property, ideally located in the ever-popular and sought-after suburb of Earlsdon. Offering a perfect blend of period charm and modern upgrades, this home is an excellent opportunity for first-time buyers, investors, or those looking to enjoy the vibrant community feel of one of Coventry’s most desirable areas.

What truly sets this property apart is its rare upstairs bathroom – a feature not often found in homes of this style, whilst also having freehold of the side passage, meaning larger bedroom space above, giving potential to renovate into a 3 bedroom property each with access from the landing. Traditionally, similar properties have the bathroom located on the ground floor, but here you’ll enjoy the convenience of a modern, well-appointed bathroom situated off the main landing.

The accommodation includes two well-proportioned double bedrooms upstairs. Downstairs you're offered a bright and airy front living room, a separate dining area or secondary living space with brand new smart vinyl flooring, and a fitted kitchen with a gorgeous sun room/office to the rear, leading to the private rear garden – ideal for relaxing or entertaining.

Situated just moments from Earlsdon’s bustling high street, you’ll have cafés, restaurants, shops, and excellent local schools on your doorstep, along with superb transport links or walking proximity to Coventry city centre, the University, and train station.

Calculate Your Stamp Duty
£
Results
Stamp Duty To Pay:
Effective Rate:
Tax Band % Taxable Sum Tax

Property location

Property Floorplan

Floorplan

Property EPC