3 BED Detached house For sale

Langdale Avenue, Loughborough

Guide Price £340,000

3 1

Enquire about this property
01509 235534

Property details

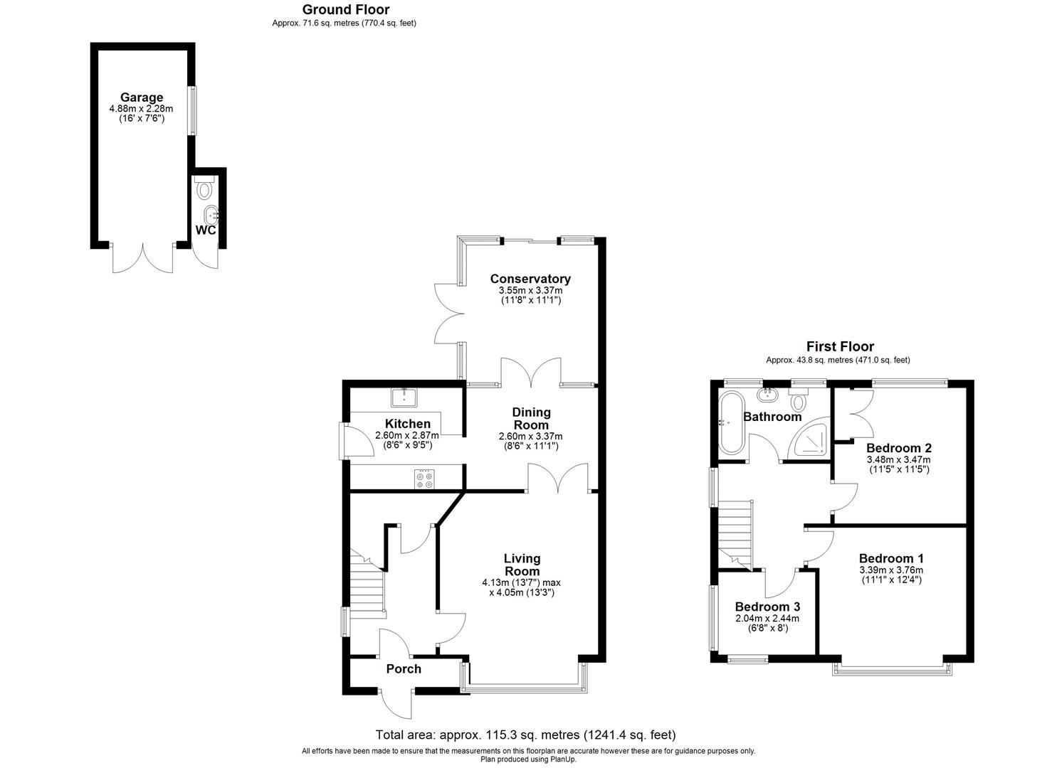
This traditional detached home is situated in a cul de sac location within this established 'Forest Side' residential area, ideally located for access to the town, Holywell Primary School and the University Campus. The well presented accommodation has gas central heating and UPVC double glazed windows and doors and includes entrance porch, hall, spacious lounge, separate dining room, fitted kitchen and conservatory. To the first floor are 3 good sized bedrooms and a bathroom with 'Slipper' bath and separate shower cubicle.

A particular feature of the property are the gardens with a generous driveway offering parking for several vehicles, carport leading to a brick built garage with outside w.c. and a mature private rear garden.

VIEWINGS & DIRECTIONS



By arrangement through the Selling Agents, Andrew Granger & Co telephone 01509 234534.

What 3 words location:- rounds.flight.bridge



ACCOMMODATION IN DETAIL



GROUND FLOOR



ENTRANCE PORCH



With UPVC double glazed entrance door.



HALL



With front door, window to side, radiator, stairs to first floor with cupboard below, meter cupboard.



SPACIOUS LOUNGE



With window to front and side, stylish stone fireplace with gas point, radiator, double doors to dining room.



SEPARATE DINING ROOM



With patio doors to rear leading to conservatory, radiator, door to kitchen.



CONSERVATORY



Of UPVC double glazed construction with doors to side and rear accessing the garden.



FITTED KITCHEN



With window to rear and door to side, nicely fitted with a range of base and wall units, solid wooden work surfaces, Belfast sink, electric ceramic hob with cooker hood above, twin electric ovens, integrated dish washer and fridge freezer, space and plumbing for washing machine, tiled splashbacks and floor, heated towel rail.



FIRST FLOOR LANDING



With window to side.



BEDROOM 1



With window to front and side, radiator, fitted wardrobes and cupboards.



BEDROOM 2



With window to rear, radiator, fitted wardrobes and cupboards, airing cupboard housing the Worcester combi boiler.



BEDROOM 3



With window to side and round window to front, radiator.



BATHROOM



With 2 windows to rear, white suite comprising w.c., wash basin, free standing 'Slipper' bath and separate shower cubicle, tiled splashbacks, heated towel rail.



OUTSIDE



FRONT GARDEN



Laid to lawn with shrubs and hedging, extensive driveway providing off road parking for several vehicles, gates to car port.



GARAGE



Single brick built garage accessed via the car port and double doors, power and lighting. Attached to the garage is an OUTSIDE W.C.



MATURE REAR GARDEN



With Indian Sandstone patio areas, raised beds, lawn with mature flower and shrub beds and a variety of trees, large timber garden shed and greenhouse.



EPC



Rating: 'D'



Council Tax Band



Charnwood Borough Council Band D



Purchasing Procedure



If you are interested in any of our properties then you should contact our offices at the earliest opportunity.

We offer Independent Financial Advice and as part of our service we will ask our Mortgage Adviser to contact all potential buyers to establish how they intend to fund their purchase.

If you are a cash purchaser then we will need confirmation of the availability of your funds.

Your home is at risk if you do not keep up re-payments on a mortgage or other loan secured on it.



Money Laundering



To comply with The Money Laundering, Terrorist Financing and Transfer of Funds Regulations 2017 we have a legal obligation to carry out Anti-Money Laundering checks on all purchasers prior to instructing solicitors to proceed with the sale. There is a £30, inclusive of vat, charge per person for processing these checks through a third-party firm. These are not a credit check and will not leave a footprint on your credit file.



Conveyancing



We would be delighted to offer the services of our associated firm, Jephson Legal, who offer very competitive quotes for conveyancing. If you would like a quotation, please speak to one of our sales team who would be happy to arrange this.




Calculate Your Stamp Duty
£
Results
Stamp Duty To Pay:
Effective Rate:
Tax Band % Taxable Sum Tax

Property location

Property Floorplan

Floorplan

Property EPC

Property Video