Commercial Development For sale

Nottingham Road, Loughborough

£250,000

Enquire about this property
01509 235534

Property details

An opportunity to acquire a mixed-use investment property comprising of a ground-floor commercial unit (No. 81) and a three bedroom flat above (No. 81A).

No. 81 is currently let as a dance studio on a 1954 Act commercial tenancy and provides an immediate income stream. No. 81A, previously let on a residential tenancy is now vacant and offers scope for renovation and enhancement, with the potential to increase rental yield.

Given Loughborough’s status as a university town, 81A may lend itself to conversion to a House in Multiple Occupation (HMO), subject to the necessary planning consents. Please note that the property falls within an Article 4 Direction area, meaning that any change of use to an HMO will require planning permission. Furthermore, HMOs occupied by five or more tenants will also require a mandatory HMO licence.

LOCATION



The property is situated on the corner of Nottingham Road and Queens, on the eastern side of the vibrant market town of Loughborough. Loughborough is a well-connected university town offering a wide range of amenities including shops, schools, pubs, churches, and a hospital. The location provides convenient access to the town centre and its facilities. The property also has excellent transport links, with the M1 motorway junction located approximately 4 miles away and approximately 0.3 miles (5 minute walk) away from the railway station.



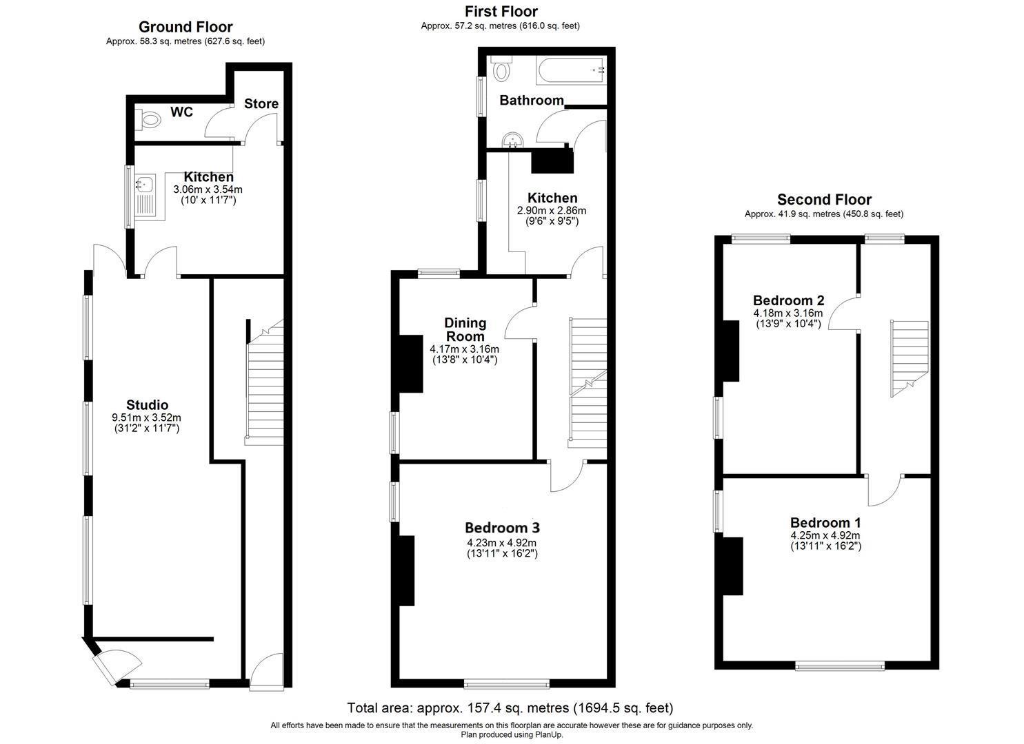
NO. 81 (Commerical Unit)



GROUND FLOOR



STUDIO (9.51 x 3.52)



Entrance hall and dance studio fitted floor length mirrors, with back door leading to small external walled yard area.



KITCHEN (3.06 x 3.54)



Fitted kitchen units with stainless steel sink, washing machine and fridge,



UTILITY



Rear utility room with WC and store room.



NO. 81A (the flat)



A residential property that would benefit from a scheme of modernisation and redecoration.

Please note that the property is in a selective licensing area of Loughborough and is currently licenced.

81A has a ground floor entrance hall with stairway leading up to the first floor living areas.



FIRST FLOOR



BEDROOM 3 (4.23 x 4.92)



With fireplace, carpet and TV point.



DINING ROOM (4.17 x 3.16)



KITCHEN (2.90 x 2.86)



With kitchen units, fridge, sink and washing machine.



BATHROOM



With WC, bath with overhead shower and pedestal sink unit.



SECOND FLOOR



BEDROOM 1 (4.25 x 4.92)



Double bedroom with carpet.



BEDROOM 2 (4.18 x 3.16)



Spacious bedroom with carpet floor.



EPC



81A has an EPC rating of E - valid until August 2031.

81 has an C EPC rating of C - valid until June 2031.



TENURE



The property is freehold but subject to the following.

No. 81 is subject to a 1954 Act Commercial Tenancy - £ 7800/annum

No 81A (the residential flat) will be sold with vacant possession upon completion but previously has been let with a rental income of £800/PCM.



GUIDE PRICE



The land is being marketed for offers in the region of £250,000.



METHOD OF SALE



The property is offered for sale via private treaty.



VIEWING



All viewings to be made by prior appointment with Andrew Granger & Co.



FURTHER INFORMATION



For any further information, please contact:

Eloise Baker MSc BSc
Andrew Granger & Company
44-46 Forest Road, Loughborough, LE11 3NP

Tel: 01509 243720
E-mail: eloise.baker@sheldonbosleyknight.co.uk

Copies of tenancy agreements can be made available upon receipt of offers.



COUNCIL TAX AND BUSINESS RATES



No. 81A is within Council Tax Band A.
No. 80. Business nRates are £4,400 (tenants responsibility).



TITLE



The property is registered with the Land Registry under title LT113498 (part of).




Calculate Your Stamp Duty
£
Results
Stamp Duty To Pay:
Effective Rate:
Tax Band % Taxable Sum Tax

Property location

Property Floorplan

Floorplan

Property EPC