5 BED House Sold STC

Grafton Underwood, Kettering, NN14

Guide Price £1,100,000

5 4

Enquire about this property
01858 431315

Property details

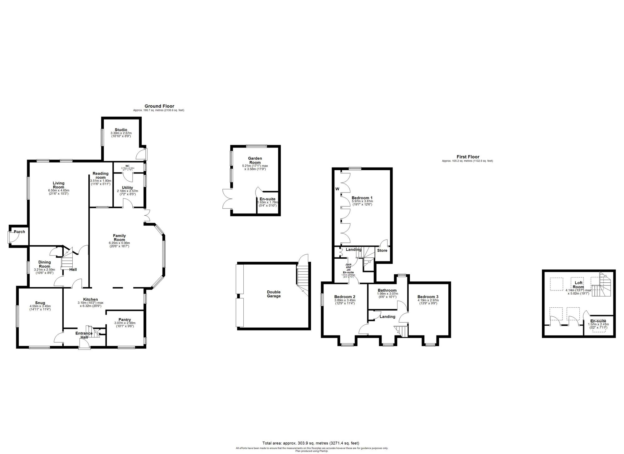
This exceptional five bedroom detached Victorian stone property offers a rare combination of period charm and modern luxury, situated in an extremely private location adjacent to the village church.
The main residence is beautifully presented and thoughtfully updated, with a recently renovated kitchen that boasts high quality integrated appliances, sleek cabinetry and ample workspace, seamlessly flowing into a spacious dining and family area. The layout is ideal for both family living and entertaining, complemented by a separate utility room and a dedicated pantry for additional storage and convenience.
The inviting lounge features a characterful woodburner, creating a warm and welcoming atmosphere, while oil fired central heating ensures comfort throughout the seasons.
The property further benefits from two separate annexes within the grounds, offering versatile accommodation for guests, extended family or home office use (both annexes are finished to a high standard and provide flexible living options).
A double garage provides secure parking and storage, accessed via a gated entrance and a large driveway that accommodates several vehicles with ease. The overall sense of privacy and seclusion is enhanced by the mature setting and the proximity to the picturesque church, offering a tranquil backdrop and a unique village atmosphere.
The interior spaces are generously proportioned, with five well appointed bedrooms across the main house and annexes, provide ample room for family members and visitors alike, while the principal bedroom enjoys attractive views and plenty of natural light.
The property has been sympathetically modernised to retain original features such as stonework and period detailing, blending seamlessly with contemporary finishes for a timeless appeal. With its impressive specification, versatile annexes and outstanding village location, this remarkable home presents an exceptional opportunity for discerning buyers seeking both character and comfort in a highly desirable setting.
The grounds include various areas for relaxing and entertaining, including a BBQ and dining area, beautiful lawns, mature planting and an outside swimming pool.

This exceptional five bedroom detached Victorian stone property offers a rare combination of period charm and modern luxury, situated in an extremely private location adjacent to the village church.
The main residence is beautifully presented and thoughtfully updated, with a recently renovated kitchen that boasts high quality integrated appliances, sleek cabinetry and ample workspace, seamlessly flowing into a spacious dining and family area. The layout is ideal for both family living and entertaining, complemented by a separate utility room and a dedicated pantry for additional storage and convenience.
The inviting lounge features a characterful woodburner, creating a warm and welcoming atmosphere, while oil fired central heating ensures comfort throughout the seasons.
The property further benefits from two separate annexes within the grounds, offering versatile accommodation for guests, extended family or home office use (both annexes are finished to a high standard and provide flexible living options).
A double garage provides secure parking and storage, accessed via a gated entrance and a large driveway that accommodates several vehicles with ease. The overall sense of privacy and seclusion is enhanced by the mature setting and the proximity to the picturesque church, offering a tranquil backdrop and a unique village atmosphere.
The interior spaces are generously proportioned, with five well appointed bedrooms across the main house and annexes, provide ample room for family members and visitors alike, while the principal bedroom enjoys attractive views and plenty of natural light.
The property has been sympathetically modernised to retain original features such as stonework and period detailing, blending seamlessly with contemporary finishes for a timeless appeal. With its impressive specification, versatile annexes and outstanding village location, this remarkable home presents an exceptional opportunity for discerning buyers seeking both character and comfort in a highly desirable setting.
The grounds include various areas for relaxing and entertaining, including a BBQ and dining area, beautiful lawns, mature planting and an outside swimming pool.


Calculate Your Stamp Duty
£
Results
Stamp Duty To Pay:
Effective Rate:
Tax Band % Taxable Sum Tax

Property location

Property Floorplan

Floorplan

Property EPC