3 BED Plot For sale

School Lane, Croxton Kerrial, NG32

Guide Price £185,000

3

Enquire about this property
01509 235534

Property details

A DELIGHTFUL INDIVIDUAL BUILDING PLOT SITUATED IN A SMALL LANE ON THE EDGE OF OF THIS PRETTY HILL TOP VILLAGE ON THE EDGE OF THE BELVOIR ESTATE. PLANNING PERMISSION HAS BEEN GRANTED FOR A STONE AND BRICK BUILT DETACHED DWELLING WITH OFF ROAD PARKING AND GARDENS.

This delightful building plot is situated on the edge of this pretty village which is situated between Melton Mowbray and Grantham and has good access to both town as well as Nottingham, the A1 and a direct rail route to London Kings Cross via the East Coast Line from Grantham Station. The village offers a mix of home which are predominantly stone or brick built, there is a village Primary School (opposite), Church, Doctors Surgery and village shop.

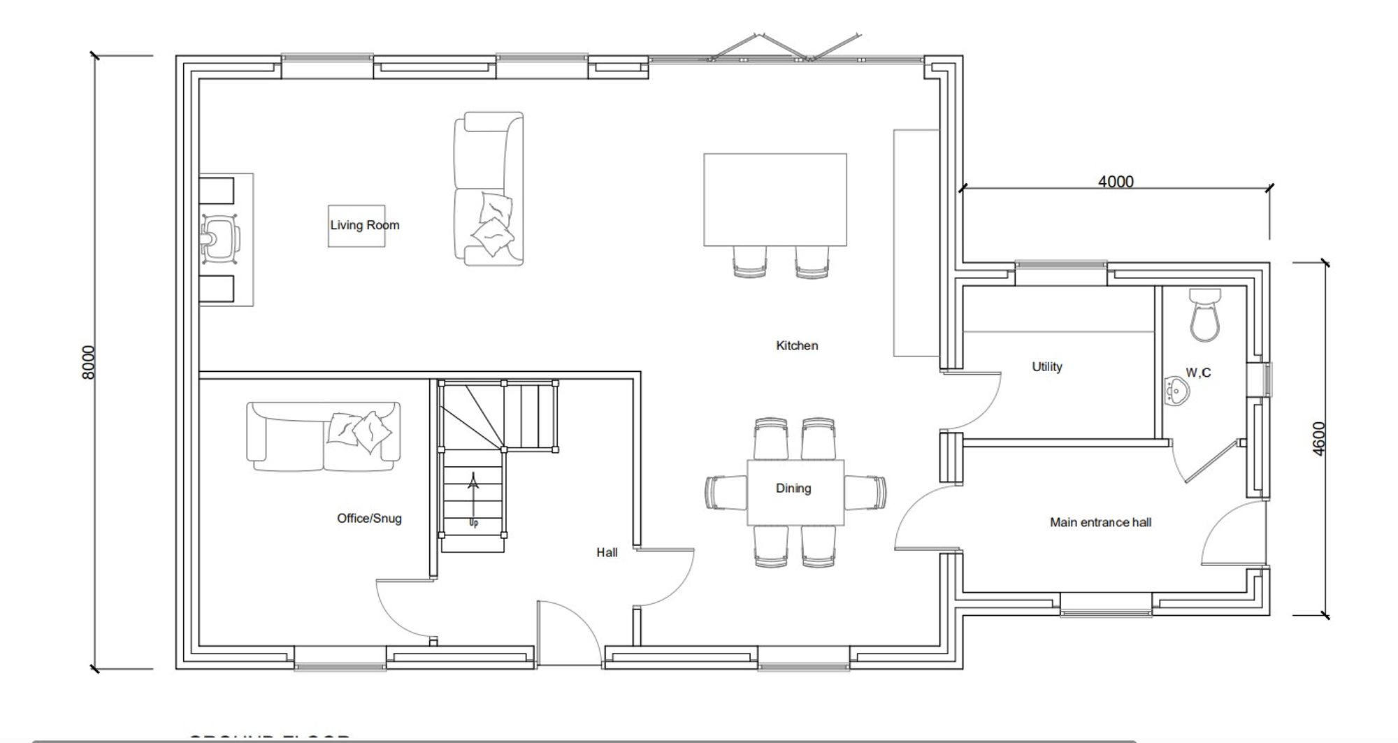
The permission provides for a detached dwelling giving a gross internal area of approximately 1490 square feet over 2 floors and will offer countryside views to the rear.

This plot would suit not only seasoned builders/developers, but would also be a great opportunity for the self builder to create their dream home.

A DELIGHTFUL INDIVIDUAL BUILDING PLOT SITUATED IN A SMALL LANE ON THE EDGE OF OF THIS PRETTY HILL TOP VILLAGE ON THE EDGE OF THE BELVOIR ESTATE. PLANNING PERMISSION HAS BEEN GRANTED FOR A STONE AND BRICK BUILT DETACHED DWELLING WITH OFF ROAD PARKING AND GARDENS.

This delightful building plot is situated on the edge of this pretty village which is situated between Melton Mowbray and Grantham and has good access to both town as well as Nottingham, the A1 and a direct rail route to London Kings Cross via the East Coast Line from Grantham Station. The village offers a mix of home which are predominantly stone or brick built, there is a village Primary School (opposite), Church, Doctors Surgery and village shop.

The permission provides for a detached dwelling giving a gross internal area of approximately 1490 square feet over 2 floors and will offer countryside views to the rear.

This plot would suit not only seasoned builders/developers, but would also be a great opportunity for the self builder to create their dream home.


Calculate Your Stamp Duty
£
Results
Stamp Duty To Pay:
Effective Rate:
Tax Band % Taxable Sum Tax

Property location

Property Floorplan

Floorplan Floorplan

Property EPC