3 BED House Sold STC

Bestwood Close, Desborough, Kettering

£315,000

3 2

Enquire about this property
0116 242 9922

Property details

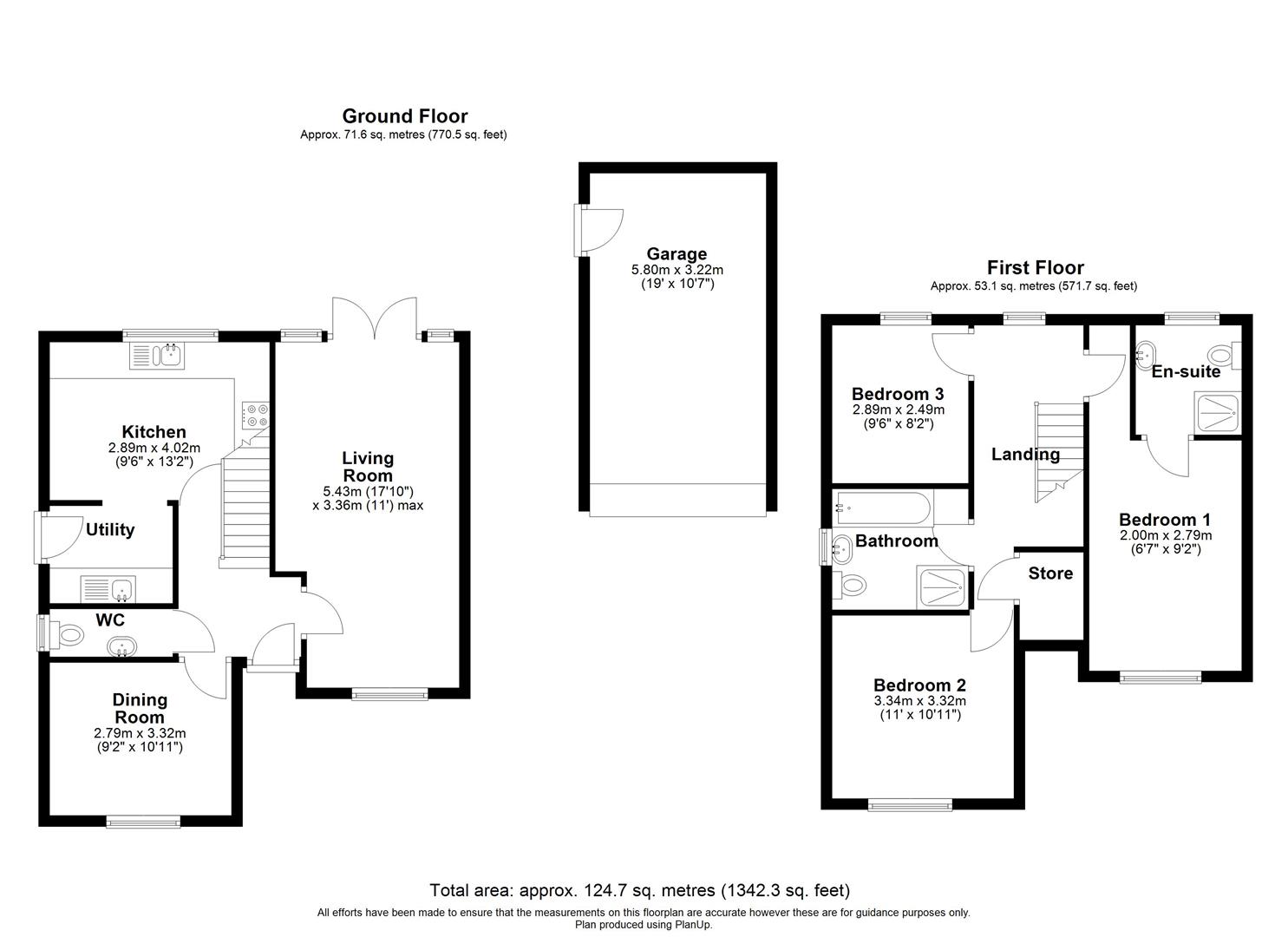
A modern three bedroom family home located on a small development, within easy walking distance of the town centre.

The accommodation comprises an entrance hallway with a staircase rising to the first floor, laminate flooring and a connecting door into the guest cloakroom that comprises a close coupled w/c, wash hand basin and a window to the side elevation.

The dual aspect living room boasts a fireplace with a raised hearth and inset gas fire and surround; a set of double doors give direct access out into the rear garden.

To the opposite side of the hallway is the dining room which has laminate flooring and a window to the front elevation.

The well appointed breakfast kitchen has a range of "shaker" style units with a complimentary worktop and an inset sink with drainer. Integrated appliances include an electric oven, gas hob with hood over, a microwave and a dishwasher; a window overlooks the rear garden. A connecting door leads into the utility room which has an integrated fridge freezer and washing machine, further sink with a drainer, wall mounted boiler and a door to the side of the property.

Located off the first floor landing are two double bedrooms and a further single. The principal bedroom boasts a double wardrobe that provides hanging and storage space, and an en-suite shower room that comprises a shower cubicle, w/c and wash hand basin with tiled splashbacks to water sensitive areas. The family bathroom has a bath with mixer taps and a shower attachment, w/c and wash hand basin.

Outside: Approached off the shared drive is hard standing for 2-3 cars, this in turn leads to a single garage with up and over door with power and lighting connected.

The rear garden offers a good degree of privacy, with a patio, shaped lawn, shrub borders ands a timber garden shed, there is also a personal gate that accesses the driveway and a door into the garage.

A modern three bedroom family home located on a small development, within easy walking distance of the town centre.

The accommodation comprises an entrance hallway with a staircase rising to the first floor, laminate flooring and a connecting door into the guest cloakroom that comprises a close coupled w/c, wash hand basin and a window to the side elevation.

The dual aspect living room boasts a fireplace with a raised hearth and inset gas fire and surround; a set of double doors give direct access out into the rear garden.

To the opposite side of the hallway is the dining room which has laminate flooring and a window to the front elevation.

The well appointed breakfast kitchen has a range of "shaker" style units with a complimentary worktop and an inset sink with drainer. Integrated appliances include an electric oven, gas hob with hood over, a microwave and a dishwasher; a window overlooks the rear garden. A connecting door leads into the utility room which has an integrated fridge freezer and washing machine, further sink with a drainer, wall mounted boiler and a door to the side of the property.

Located off the first floor landing are two double bedrooms and a further single. The principal bedroom boasts a double wardrobe that provides hanging and storage space, and an en-suite shower room that comprises a shower cubicle, w/c and wash hand basin with tiled splashbacks to water sensitive areas. The family bathroom has a bath with mixer taps and a shower attachment, w/c and wash hand basin.

Outside: Approached off the shared drive is hard standing for 2-3 cars, this in turn leads to a single garage with up and over door with power and lighting connected.

The rear garden offers a good degree of privacy, with a patio, shaped lawn, shrub borders ands a timber garden shed, there is also a personal gate that accesses the driveway and a door into the garage.

Calculate Your Stamp Duty
£
Results
Stamp Duty To Pay:
Effective Rate:
Tax Band % Taxable Sum Tax

Property location

Property Floorplan

Floorplan

Property EPC